当サイトは物件紹介をブログ形式で皆様へお届けしております。
空室状況については、都度お問い合わせ下さいませ。
北浜駅にエステの居抜き
お問い合わせ番号:OJ14136
当サイトは物件紹介をブログ形式で皆様へお届けしております。
空室状況については、都度お問い合わせ下さいませ。
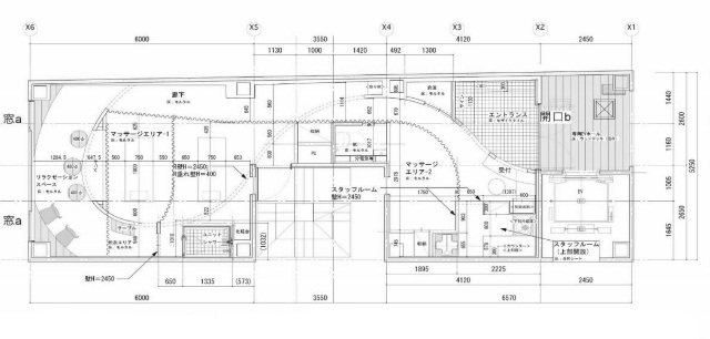
間取り

物件画像一覧
周辺地図
物件情報
| 種別 | 構造 | 所在地 | 駐車場 |
|---|---|---|---|
| 貸店舗・テナント | 鉄骨造 | 大阪府大阪市中央区北浜 | 無 |
| 家賃 | 共益費 | 敷金 | 礼金 |
| 347,000円(税抜き) | 0円 | 0円 | 0円 |
| 坪数 | 専有面積 | 保証金 | 解約引 |
| 20坪 | 66.02m2 | 2,000,000円 | スライド制 |
| 定期借家 | 方角 | エレベーター | 完成年月 |
| 10年 | 西 | 有 | 2005年5月 |
| 初回保証料100% | 警備代 | 造作譲渡金 | |
| 2,500円(税抜き) | 2,000,000円(税抜き) | ||
| 物件設備 |
|
||
| 交通 |
大阪メトロ堺筋線/北浜/徒歩1分 |
||
LINEでお問い合わせ
メールフォームからお問い合わせ
下記のフォームに必要事項とお問い合わせ内容を入力して送信してください。
※お名前、メールアドレス、お問い合わせ内容は必ず入力してください。








