当サイトは物件紹介をブログ形式で皆様へお届けしております。
空室状況については、都度お問い合わせ下さいませ。
2025.10.1 DEBUT
お問い合わせ番号:OJ14684
当サイトは物件紹介をブログ形式で皆様へお届けしております。
空室状況については、都度お問い合わせ下さいませ。
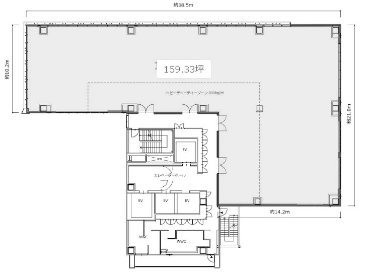
間取り

物件画像一覧
周辺地図
物件情報
| 種別 | 構造 | 所在地 | 駐車場 |
|---|---|---|---|
| 貸事務所 | 鉄骨造 | 大阪府大阪市北区堂山町 | 有 |
| 家賃 | 共益費 | 敷金 | 礼金 |
| 3,983,250円(税抜き) | - | 47,799,000円 | - |
| 坪数 | 専有面積 | 保証金 | 解約引 |
| 159.33坪 | 526.71m2 | ||
| 定期借家 | 方角 | エレベーター | 完成年月 |
| 年 | 東 | 有 | 2025年10月 |
| 物件設備 |
|
||
| 交通 |
阪急電鉄京都線/梅田/徒歩6分 |
||
LINEでお問い合わせ
メールフォームからお問い合わせ
下記のフォームに必要事項とお問い合わせ内容を入力して送信してください。
※お名前、メールアドレス、お問い合わせ内容は必ず入力してください。








