当サイトは物件紹介をブログ形式で皆様へお届けしております。
空室状況については、都度お問い合わせ下さいませ。
大阪天満宮のお膝元で
お問い合わせ番号:OJ14740
当サイトは物件紹介をブログ形式で皆様へお届けしております。
空室状況については、都度お問い合わせ下さいませ。
北区天神橋二丁目
南森町エリア
通称:なんもり
大阪メトロ堺筋線/谷町線 南森町駅から
日本一長い天神橋筋商店街の中を
ちょっと通って徒歩1分
そんな、ええ場所にあります
建物斜め前には
「学問の神様」である菅原道真公を祀る神社
大阪天満宮がございます
市民の皆さまからは
「天満の天神さん」と呼ばれ親しまれてます
今回ご紹介のテナントは
階段で3階
ワンフロアの16坪
用途は事務所専用になります
新規開業など、いかがでしょうか?
お問合せ、お待ちしております
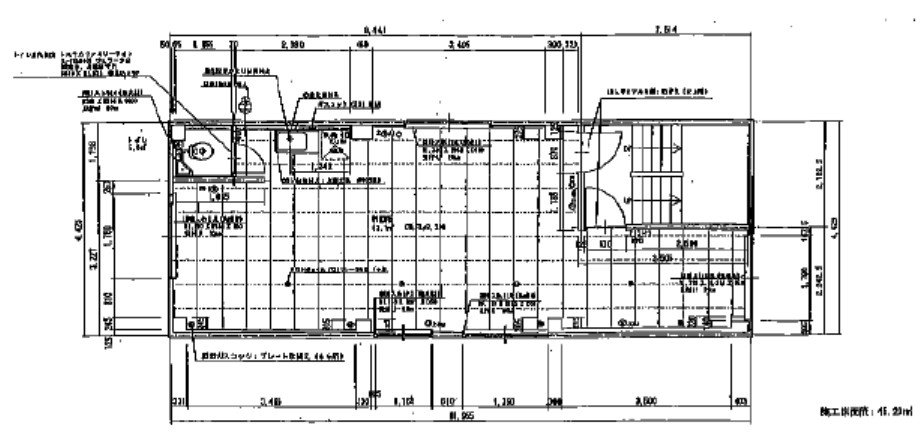
間取り

物件画像一覧
周辺地図
物件情報
| 種別 | 構造 | 所在地 | 駐車場 |
|---|---|---|---|
| 貸事務所 | 鉄骨造 | 大阪府大阪市北区天神橋 | 無 |
| 家賃 | 共益費 | 敷金 | 礼金 |
| 90,000円(税抜き) | - | 90,000円 | 180,000円(税抜き) |
| 坪数 | 専有面積 | 保証金 | 解約引 |
| 16坪 | 52.89m2 | ||
| 定期借家 | 方角 | エレベーター | 完成年月 |
| 年 | 南 | 無 | 1977年1月 |
| 水道代 | |||
| 2,000円(税抜き) | |||
| 物件設備 |
|
||
| 交通 |
大阪メトロ堺筋線/南森町/徒歩1分 |
||
LINEでお問い合わせ
メールフォームからお問い合わせ
下記のフォームに必要事項とお問い合わせ内容を入力して送信してください。
※お名前、メールアドレス、お問い合わせ内容は必ず入力してください。








