当サイトは物件紹介をブログ形式で皆様へお届けしております。
空室状況については、都度お問い合わせ下さいませ。
※値下げ破格値
お問い合わせ番号:DT14158
当サイトは物件紹介をブログ形式で皆様へお届けしております。
空室状況については、都度お問い合わせ下さいませ。
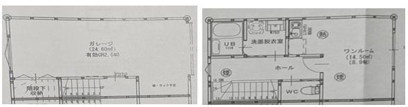
間取り

物件画像一覧
周辺地図
物件情報
| 種別 | 所在地 | 構造 | 駐車場 |
|---|---|---|---|
| シングルタイプ | 大阪府東大阪市岩田町 | 鉄筋コンクリート造 2階建 |
有 |
| タイプ | エレベーター | 完成 | 戸数 |
| 1ルーム | 無 | 2025年8月 |
|
| 物件設備 |
|
||
| 交通 |
近鉄難波・奈良線/若江岩田駅 徒歩3分 |
||
部屋情報
| 家賃 | 専有面積 | 敷金 | 礼金 |
|---|---|---|---|
| 125,000円 | 59.62m2 | 0円 | 125,000円 |
| 共益費 | 完成年月 | バルコニーの向き | |
| 0円 | 2025年8月 | 東 | |
| 火災保険 | |||
| 250,000円 | |||
| 部屋設備 |
|
||
LINEでお問い合わせ
メールフォームからお問い合わせ
下記のフォームに必要事項とお問い合わせ内容を入力して送信してください。
※お名前、メールアドレス、お問い合わせ内容は必ず入力してください。
view この物件を見た人はこんな物件も見ています
リノベ&広すぎルーバル
衝撃の広さのルーフバルコニーこのバルコニ...
- 住吉区
- 3LDK(+S)
- ¥130,000

事務所向きのガレージハウス
世界に誇る工場が沢山ある街東大阪市エリア...
- 東大阪市
- 1ルーム
- ¥120,000

やって来た!
遂に…ついに…ついに…出現!待望のDESIGNERS...
- 枚方市
- 1ルーム
- ¥67,000

【早い者勝ち】螺旋と庭
憧れの文教地区「天王寺区」より探せど中々...
- 天王寺区
- 2LDK(+S)
- ¥157,000

出会った瞬間から一目惚れ
条件良すぎてオッタマゲ物件一点物の誰もが...
- 東大阪市
- 1LDK(+S)
- ¥80,000

ガレージハウス@柏原市
極で初登場の柏原市2025年12月1日から入居...
- 柏原市
- 1LDK(+S)
- ¥148,000

無骨で 美しい
閑静な住宅街に突如君臨コンクリ系ガレハ玉...
- 豊中市
- 1ルーム
- ¥143,000

低層階でもこの眺望
都島区の大川沿いリバーサイド物件をお探し...
- 都島区
- 1LDK(+S)
- ¥130,000

見た目が高さそうに見える
このエントランスを見ると家賃が高さそうに...
- 港区
- 1LDK(+S)
- ¥114,000

森ノ宮 無機質と無垢のスロウダンス
コンクリの冷たさ無垢床のあたたかさ真顔で...
- 中央区
- 1LDK(+S)
- ¥187,000


















