当サイトは物件紹介をブログ形式で皆様へお届けしております。
空室状況については、都度お問い合わせ下さいませ。
共用部分にーー
お問い合わせ番号:DT14229
当サイトは物件紹介をブログ形式で皆様へお届けしております。
空室状況については、都度お問い合わせ下さいませ。
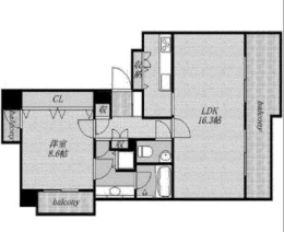
間取り

物件画像一覧
周辺地図
物件情報
| 種別 | 所在地 | 構造 | 駐車場 |
|---|---|---|---|
| シングルタイプ | 大阪府大阪市天王寺区真田山町 | 鉄骨鉄筋コンクリート造 13階建 |
有 |
| タイプ | エレベーター | 完成 | 戸数 |
| 1LDK(+S) | 有 | 1993年3月 |
|
| 物件設備 |
|
||
| 交通 |
大阪メトロ千日前線/鶴橋駅 徒歩5分 |
||
部屋情報
| 家賃 | 専有面積 | 敷金 | 礼金 |
|---|---|---|---|
| 160,000円 | 71.09m2 | 160,000円 | 160,000円 |
| 共益費 | 完成年月 | バルコニーの向き | |
| 10,000円 | 1993年3月 | 西 | |
| 初回保証料 | 火災保険/2年 | ||
| 円 | 円 | ||
| 部屋設備 |
|
||
LINEでお問い合わせ
メールフォームからお問い合わせ
下記のフォームに必要事項とお問い合わせ内容を入力して送信してください。
※お名前、メールアドレス、お問い合わせ内容は必ず入力してください。
view この物件を見た人はこんな物件も見ています
帝塚山の頂へ
帝塚山の中でもラグジュアリーな暮らしを叶...
- 住吉区
- 2LDK(+S)
- ¥320,000

北摂駐車場付メゾデザ
北摂の代表的デザマンコンクリ×WOOD×白系メ...
- 吹田市
- 2LDK(+S)
- ¥190,000

ラグジュアリーレジデンス
タワーの煌びやかさよりも本質の質感を選ぶ...
- 西区
- 1LDK(+S)
- ¥270,000

**5LDK 236㎡**
ここまでプレミアムな物件は初めて見ました...
- 中央区
- 4K~
- ¥960,000

激レア…深井のガレハ
待望の登場人気のガレージハウスが遂に空き...
- 堺市中区
- 2LDK(+S)
- ¥149,000

2匹以上ペットを飼いたい方に…
ペット2匹飼ってるけど物件がない…特にファ...
- 住吉区
- 2LDK(+S)
- ¥198,000

美意識ごとアップデート
北浜駅 天満橋駅 徒歩圏内ラグジュアリー...
- 中央区
- 1ルーム
- ¥92,000

自然と調和する隠れ家
吹田市泉町閑静な住宅街の中にSTYLISHな建...
- 吹田市
- 1ルーム
- ¥120,000

陽だまりの陰影
南向きの暖かい光が室内に芸術の陰影を創り...
- 福島区
- 1DK(+S)
- ¥106,000

デザマン入門編
人気の新町エリアで存在感を放つ【アクエル...
- 西区
- 1ルーム
- ¥65,000


















