当サイトは物件紹介をブログ形式で皆様へお届けしております。
空室状況については、都度お問い合わせ下さいませ。
Family with FIX
お問い合わせ番号:DT14333
当サイトは物件紹介をブログ形式で皆様へお届けしております。
空室状況については、都度お問い合わせ下さいませ。
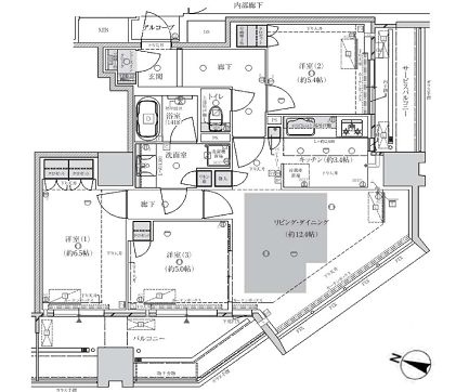
間取り

物件画像一覧
周辺地図
物件情報
| 種別 | 所在地 | 構造 | 駐車場 |
|---|---|---|---|
| ファミリータイプ | 大阪府大阪市港区弁天 | 鉄筋コンクリート造 29階建 |
有 |
| タイプ | エレベーター | 完成 | 戸数 |
| 3LDK(+S) | 有 | 2023年1月 |
|
| 物件設備 |
|
||
| 交通 |
JR大阪環状線/弁天町駅 徒歩4分 |
||
部屋情報
| 家賃 | 専有面積 | 敷金 | 礼金 |
|---|---|---|---|
| 275,000円 | 76.67m2 | 275,000円 | 275,000円 |
| 共益費 | 完成年月 | バルコニーの向き | |
| 0円 | 2023年1月 | 南西 | |
| 初回保証料100% | 家財保険(月額) | 家財保険(月額) | 鍵 |
| 円 | 1,100円 | 1,100円 | 35,000円 |
| 部屋設備 |
|
||
LINEでお問い合わせ
メールフォームからお問い合わせ
下記のフォームに必要事項とお問い合わせ内容を入力して送信してください。
※お名前、メールアドレス、お問い合わせ内容は必ず入力してください。
view この物件を見た人はこんな物件も見ています
合計120㎡越え?!?!
JR線/天王寺駅 徒歩10分近鉄南大阪線/河堀...
- 阿倍野区
- 2LDK(+S)
- ¥300,000

今弁天町が熱い
近年開発の進む弁天町エリアにて待望のファ...
- 港区
- 2LDK(+S)
- ¥142,000

※写真は荒いですが・・・※
募集が出たらスグ決まってしまう大人気デザ...
- 北区
- 1LDK(+S)
- ¥150,000

???
なんだこの間取りは。皆さまそう思ったので...
- 北区
- 1ルーム
- ¥65,000

ワンフロアで周りを気にせず
【La CASA石ヶ辻】2025年4月竣工人気の上本...
- 天王寺区
- 3LDK(+S)
- ¥300,000

空と街を支配するタワーの頂
34階から見下ろす大阪の光景はまるで映画の...
- 中央区
- 2LDK(+S)
- ¥260,000

**5LDK 236㎡**
ここまでプレミアムな物件は初めて見ました...
- 中央区
- 4K~
- ¥960,000

駐車場付きデザイナーズ
吹田市のデザイナーズの代表的物件その名は...
- 吹田市
- 2LDK(+S)
- ¥190,000

靭公園界隈デザ
〝代表”と言っても過言ではない2008年大阪...
- 西区
- 1LDK(+S)
- ¥165,000

最上階で圧巻の広さ
最上階角部屋プレジオシリーズの特別部屋BI...
- 中央区
- 1LDK(+S)
- ¥310,000


















