当サイトは物件紹介をブログ形式で皆様へお届けしております。
空室状況については、都度お問い合わせ下さいませ。
2台駐車可 ガ レ ハ
お問い合わせ番号:DT14334
当サイトは物件紹介をブログ形式で皆様へお届けしております。
空室状況については、都度お問い合わせ下さいませ。
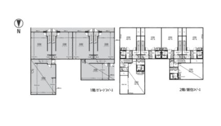
間取り

物件画像一覧
周辺地図
物件情報
| 種別 | 所在地 | 構造 | 駐車場 |
|---|---|---|---|
| シングルタイプ | 大阪府東大阪市岸田堂南町 | 鉄筋コンクリート造 2階建 |
有 |
| タイプ | エレベーター | 完成 | 戸数 |
| 1ルーム | 無 | 2025年10月 |
|
| 物件設備 |
|
||
| 交通 |
JRおおさか東線/JR長瀬駅 徒歩1分 |
||
部屋情報
| 家賃 | 専有面積 | 敷金 | 礼金 |
|---|---|---|---|
| 162,000円 | 57.96m2 | 0円 | 324,000円 |
| 共益費 | 完成年月 | バルコニーの向き | |
| 5,000円 | 2025年10月 | 北 | |
| 保証会社 | 火災保険 | ||
| 50% | 22000 | ||
| 部屋設備 |
|
||
LINEでお問い合わせ
メールフォームからお問い合わせ
下記のフォームに必要事項とお問い合わせ内容を入力して送信してください。
※お名前、メールアドレス、お問い合わせ内容は必ず入力してください。
view この物件を見た人はこんな物件も見ています
最上階角部屋
環状線沿いで物件をお探しの方~白系の可愛...
- 東成区
- 1K
- ¥69,000

先行募集のガレハ@箕面
初回申込者限定キャンペーン実施中!!遂に...
- 箕面市
- 1LDK(+S)
- ¥198,000

re-バイカーズハウス
SINCE1981・・・時を超え今ここに。東大阪...
- 東大阪市
- 2LDK(+S)
- ¥95,000

庄内で出会う、stylish空間
便利な立地に生まれ変わったのは…1986年築“...
- 豊中市
- 1ルーム
- ¥48,000

家はオマケ説
ガレージが本宅説ガレハ認知度急上昇中につ...
- 交野市
- 1ルーム
- ¥100,000

愛車と一緒に♡
デザインと自由を纏った空間ここに住むのは...
- 港区
- 1LDK(+S)
- ¥128,000

整ってます
2025年3月竣工「プレジオ帝塚山」 小型...
- 住吉区
- 1LDK(+S)
- ¥121,000

洗練とやすらぎが共存する、静寂の住まい
無駄を削ぎ落としたグレートーンの空間に優...
- 東大阪市
- 1LDK(+S)
- ¥135,000

ルーフバルコニーは特別感あり
最上階の1室限定これがルーバル付きの部屋...
- 豊中市
- 3LDK(+S)
- ¥113,000


















