当サイトは物件紹介をブログ形式で皆様へお届けしております。
空室状況については、都度お問い合わせ下さいませ。
総持寺って知ってる??
お問い合わせ番号:DT14403
当サイトは物件紹介をブログ形式で皆様へお届けしております。
空室状況については、都度お問い合わせ下さいませ。
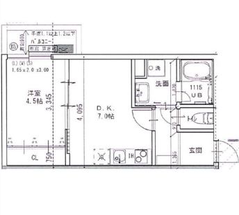
間取り
物件画像一覧
周辺地図
物件情報
| 種別 | 所在地 | 構造 | 駐車場 |
|---|---|---|---|
| シングルタイプ | 大阪府茨木市三島町 | 木造 3階建 |
有 |
| タイプ | エレベーター | 完成 | 戸数 |
| 1LDK(+S) | 無 | 2025年9月 |
|
| 物件設備 |
|
||
| 交通 |
JR東海道本線/JR総持寺駅 徒歩9分 |
||
部屋情報
| 家賃 | 専有面積 | 敷金 | 礼金 |
|---|---|---|---|
| 79,000円 | 31.67m2 | 0円 | 158,000円 |
| 共益費 | 完成年月 | バルコニーの向き | |
| 6,000円 | 2025年9月 | 北 | |
| 初回保証料 | 火災保険/2年 | 事務手数料 | |
| 50円 | 18,000円 | 22,000円 | |
| 部屋設備 |
|
||
LINEでお問い合わせ
メールフォームからお問い合わせ
下記のフォームに必要事項とお問い合わせ内容を入力して送信してください。
※お名前、メールアドレス、お問い合わせ内容は必ず入力してください。
view この物件を見た人はこんな物件も見ています
ロフトだけでなく・・・
阪急千里線吹田駅 徒歩5分閑静な住宅街の...
- 吹田市
- 1LDK(+S)
- ¥72,000

「顔パスだから」
カギを探す時代は、もう終わり大阪の主要路...
- 吹田市
- 2K
- ¥126,000

野菜育てる?
江坂に佇むTOPAZ49㎡ 1LDK無駄を削ぎ落と...
- 吹田市
- 1LDK(+S)
- ¥159,000

整う男の、整う部屋
モノトーンは古い?今はどっちつかずのグレ...
- 吹田市
- 1LDK(+S)
- ¥140,000

いやいやいやいや…
稀少すぎ案件サロンオーナー様からのお問合...
- 吹田市
- 1K
- ¥66,000

暮らしを支える江坂
外観の無機質さが都会のリズムを映す室内に...
- 吹田市
- 1LDK(+S)
- ¥93,000

はじめてにうれしい♡
学生さん新社会人さん初めての一人暮らしに...
- 吹田市
- 1K
- ¥62,000

ルーバルがある暮らし
北大阪急行線緑地公園駅徒歩5分北摂の自然...
- 豊中市
- 1LDK(+S)
- ¥98,000

駅が目の前…白系デザマン
阪急宝塚線岡町駅徒歩1分駅から出るとすぐ...
- 豊中市
- 1ルーム
- ¥68,000

マンション内で仕事
テレワークが増えて家の中で仕事をする時代...
- 吹田市
- 1LDK(+S)
- ¥120,000


















