当サイトは物件紹介をブログ形式で皆様へお届けしております。
空室状況については、都度お問い合わせ下さいませ。
箕面市からガレハが登場
お問い合わせ番号:DT14480
当サイトは物件紹介をブログ形式で皆様へお届けしております。
空室状況については、都度お問い合わせ下さいませ。
- 箕面市粟生外院
- 171号線の少し北側に位置し
- 静かな環境のエリア
- 2025年9月に完成
- 北摂の希少なガレージハウス
- 【ライトベース粟生外院】
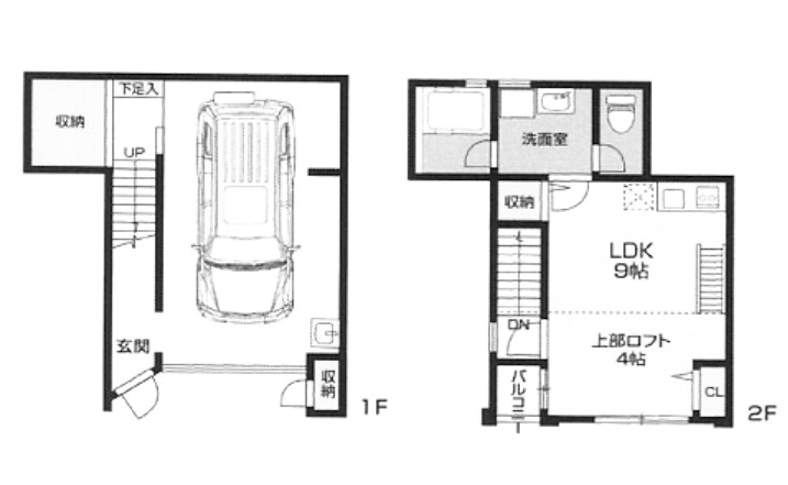
- 約65㎡のワンルーム+車庫
- ガレージのサイズは…
- 幅2450×高さ2150×奥行5200
- 車庫前には専用の収納庫もあり
- 2階はワンルーム9帖の洋室と約4帖のロフト
- ロフトがあるので開放感もある
- デザイナーズ仕様のキッチン
- バス・トイレ・洗面台・洗濯機置き場があり
- 住居で暮らすのもあり
- 車庫を倉庫にして事務所用にするにもあり
- ペットの飼育も可能
- 外部でプラス1台駐車場付き
- 事務所または住居
- どちらの選択肢でも快適に過ごせる
- 今、人気上昇中の箕面エリアから…
- 人気のガレージハウス
- この価格帯は希少価値あり
- お問合せお待ちしております
間取り

物件画像一覧
周辺地図
物件情報
| 種別 | 所在地 | 構造 | 駐車場 |
|---|---|---|---|
| シングルタイプ | 大阪府箕面市粟生外院 | 木造 2階建 |
有 |
| タイプ | エレベーター | 完成 | 戸数 |
| 1ルーム | 無 | 2025年9月 |
|
| 物件設備 |
|
||
| 交通 |
北大阪急行南北線/箕面萱野駅 徒歩28分 |
||
部屋情報
| 家賃 | 専有面積 | 敷金 | 礼金 |
|---|---|---|---|
| 143,000円 | 65.94m2 | 0円 | 286,000円 |
| 共益費 | 完成年月 | バルコニーの向き | |
| 0円 | 2025年9月 | 南 | |
| 保証会社 | 火災保険 | ||
| 77% | プランによる | ||
| 部屋設備 |
|
||
LINEでお問い合わせ
メールフォームからお問い合わせ
下記のフォームに必要事項とお問い合わせ内容を入力して送信してください。
※お名前、メールアドレス、お問い合わせ内容は必ず入力してください。
view この物件を見た人はこんな物件も見ています
無骨で 美しい
閑静な住宅街に突如君臨コンクリ系ガレハ玉...
- 豊中市
- 1ルーム
- ¥143,000

駐車場付きデザイナーズ
吹田市のデザイナーズの代表的物件その名は...
- 吹田市
- 2LDK(+S)
- ¥190,000

贅沢な白、そして最上階
ただのデザイナーズじゃない3m超えの天井...
- 西区
- 1LDK(+S)
- ¥140,000

住みやすさと趣味を兼ね備えた
南大阪線「恵我ノ荘」徒歩16分羽曳野市向野...
- 羽曳野市
- 1LDK(+S)
- ¥121,000

自由度MAX
落ち着いた住環境で人気の四天王寺夕陽丘エ...
- 天王寺区
- 1LDK(+S)
- ¥129,000

寺町に佇む白い部屋
四天王寺へ続く寺町の静けさに寄り添うよう...
- 天王寺区
- 1DK(+S)
- ¥91,000

重視するポイントは眺望と部屋
駅から離れていても物件が良さがあれば大丈...
- 北区
- 1LDK(+S)
- ¥170,000

2025年箕面からガレハ登場
2025年11月築のガレージハウス箕面市から誕...
- 箕面市
- 1LDK(+S)
- ¥140,000

with P
これがこんなにも難しいなんて、、、タワー...
- 中央区
- 3LDK(+S)
- ¥350,000

交差点角のあの一角
西区屈指のファミリー居住区北堀江4丁目よ...
- 西区
- 1LDK(+S)
- ¥115,000


















