当サイトは物件紹介をブログ形式で皆様へお届けしております。
空室状況については、都度お問い合わせ下さいませ。
粟生外院に爆誕!
お問い合わせ番号:DT14415
当サイトは物件紹介をブログ形式で皆様へお届けしております。
空室状況については、都度お問い合わせ下さいませ。
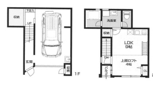
間取り

物件画像一覧
周辺地図
物件情報
| 種別 | 所在地 | 構造 | 駐車場 |
|---|---|---|---|
| シングルタイプ | 大阪府箕面市粟生外院 | 木造 2階建 |
有 |
| タイプ | エレベーター | 完成 | 戸数 |
| 1ルーム | 無 | 2025年9月 |
|
| 物件設備 |
|
||
| 交通 |
北大阪急行南北線/箕面萱野駅 徒歩28分 |
||
部屋情報
| 家賃 | 専有面積 | 敷金 | 礼金 |
|---|---|---|---|
| 137,000円 | 63.20m2 | 0円 | 274,000円 |
| 共益費 | 完成年月 | バルコニーの向き | |
| 0円 | 2025年9月 | 西 | |
| 初回保証料 | 火災保険/2年 | ||
| 77円 | 円 | ||
| 部屋設備 |
|
||
LINEでお問い合わせ
メールフォームからお問い合わせ
下記のフォームに必要事項とお問い合わせ内容を入力して送信してください。
※お名前、メールアドレス、お問い合わせ内容は必ず入力してください。
view この物件を見た人はこんな物件も見ています
空間を繋ぐ階段
南森町の1点モノ各線南森町駅徒歩6分西天満...
- 北区
- 1LDK(+S)
- ¥149,500

自然を纏うガレージハウス
茨木市豊川2丁目この場所に隠れ家的なガレ...
- 茨木市
- 1LDK(+S)
- ¥169,000

住むより映える
浪速の代表作貴重なデザイナーズ募集素早さ...
- 浪速区
- 1LDK(+S)
- ¥210,000

堀江メゾネット
北堀江1丁目78.11㎡ 2LDK貴重なメゾネット...
- 西区
- 2LDK(+S)
- ¥280,000

激レア…深井のガレハ
待望の登場人気のガレージハウスが遂に空き...
- 堺市中区
- 2LDK(+S)
- ¥149,000

駐車場付きデザイナーズ
吹田市のデザイナーズの代表的物件その名は...
- 吹田市
- 2LDK(+S)
- ¥190,000

「美しい、ガレハ。」
シュッとパリッとオシャーーーーーなガレハ...
- 鶴見区
- 1LDK(+S)
- ¥288,000

メゾネットの世界へようこそ
上階の角を贅沢に使ったメゾネット物件その...
- 北区
- 1LDK(+S)
- ¥149,500

伝説のメゾネット
これは…これは…伝説のポケモンじゃなくてア...
- 中央区
- 3LDK(+S)
- ¥416,500

住みやすさと趣味を兼ね備えた
南大阪線「恵我ノ荘」徒歩16分羽曳野市向野...
- 羽曳野市
- 1LDK(+S)
- ¥121,000


















